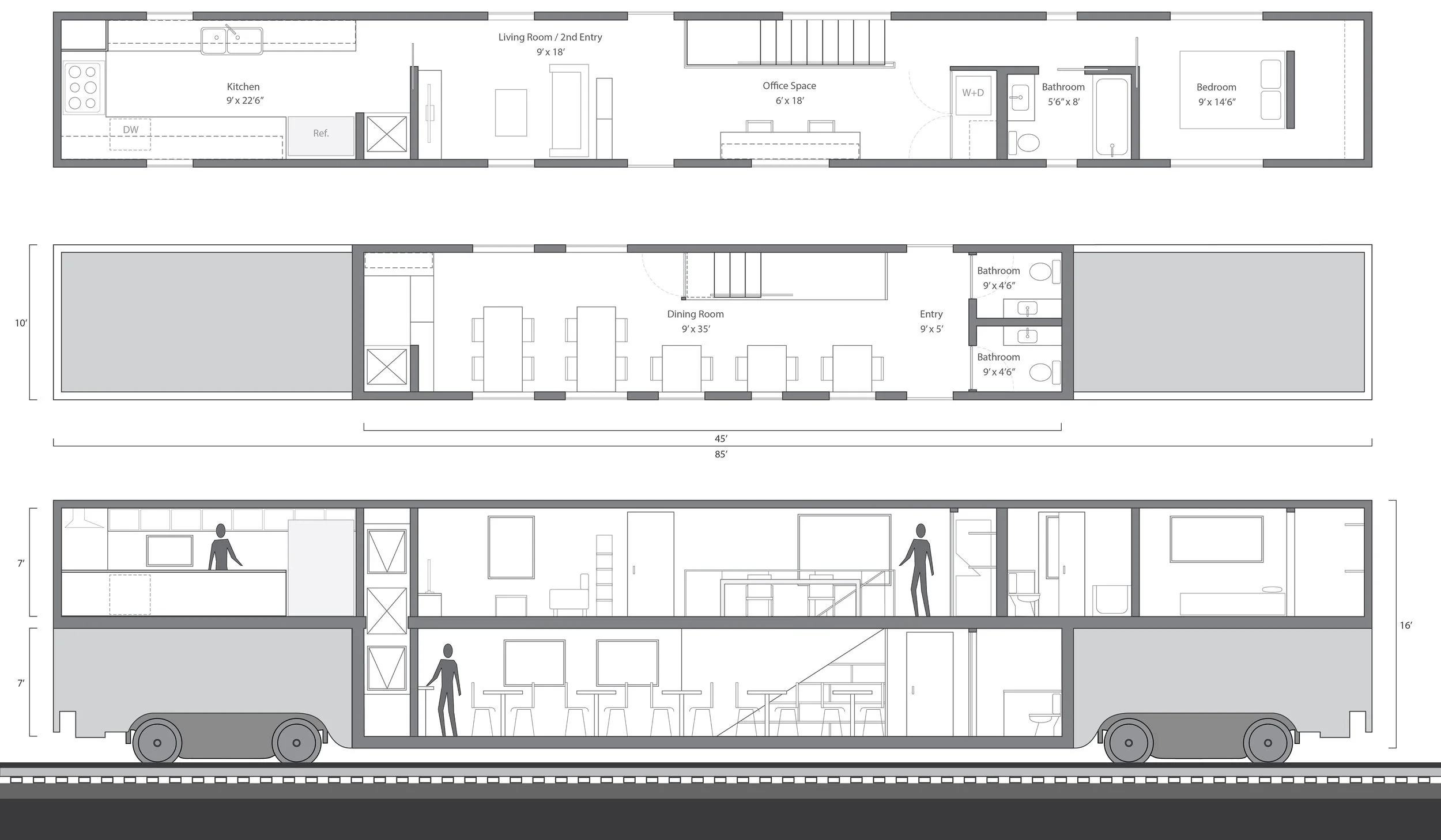
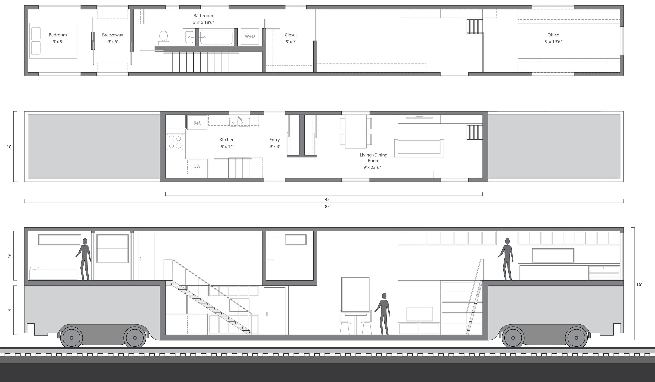
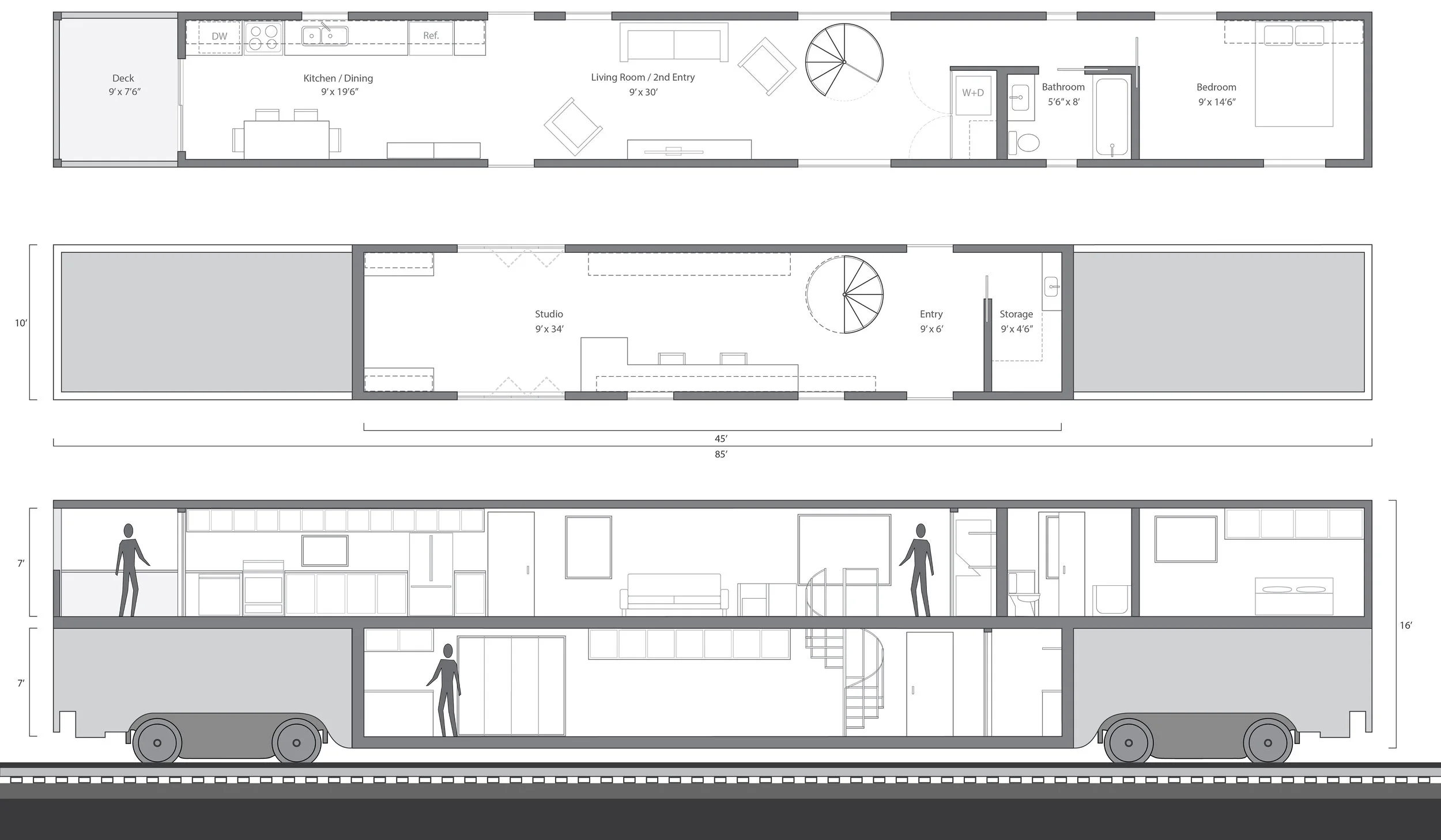
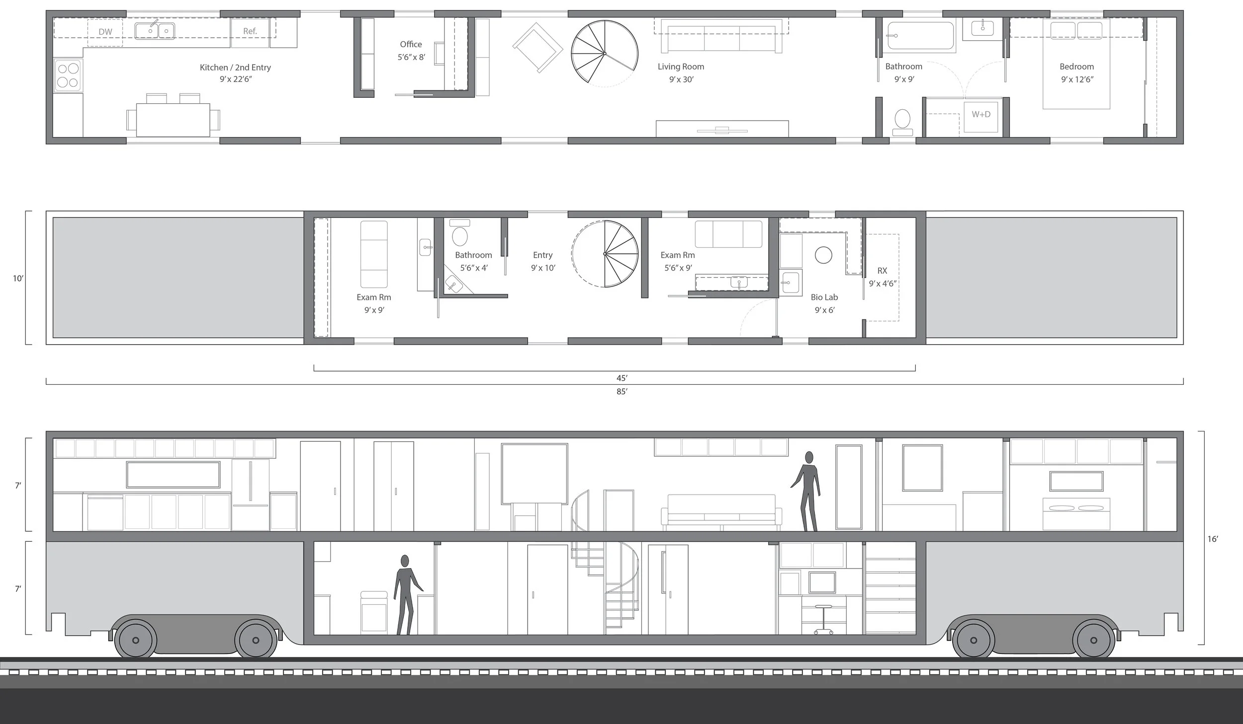
Railcar Design : Applications for Rail Programs

My M.Arch thesis focused on the concept and archetype of ‘rail living’ - railcar designs themselves were purposefully generic. They can be as varied as those who choose to use them. I hope to develop several in more detail so that a more complete picture of a working system can emerge.

interior sketch 1.74.crop.jpg